Rooftop in Berlin Kreuzberg

In charge for: Complete design (concept, SD, DD & CD supervision, site surveillance)
Completion: 2022
Location: Berlin, Germany
Client: Private
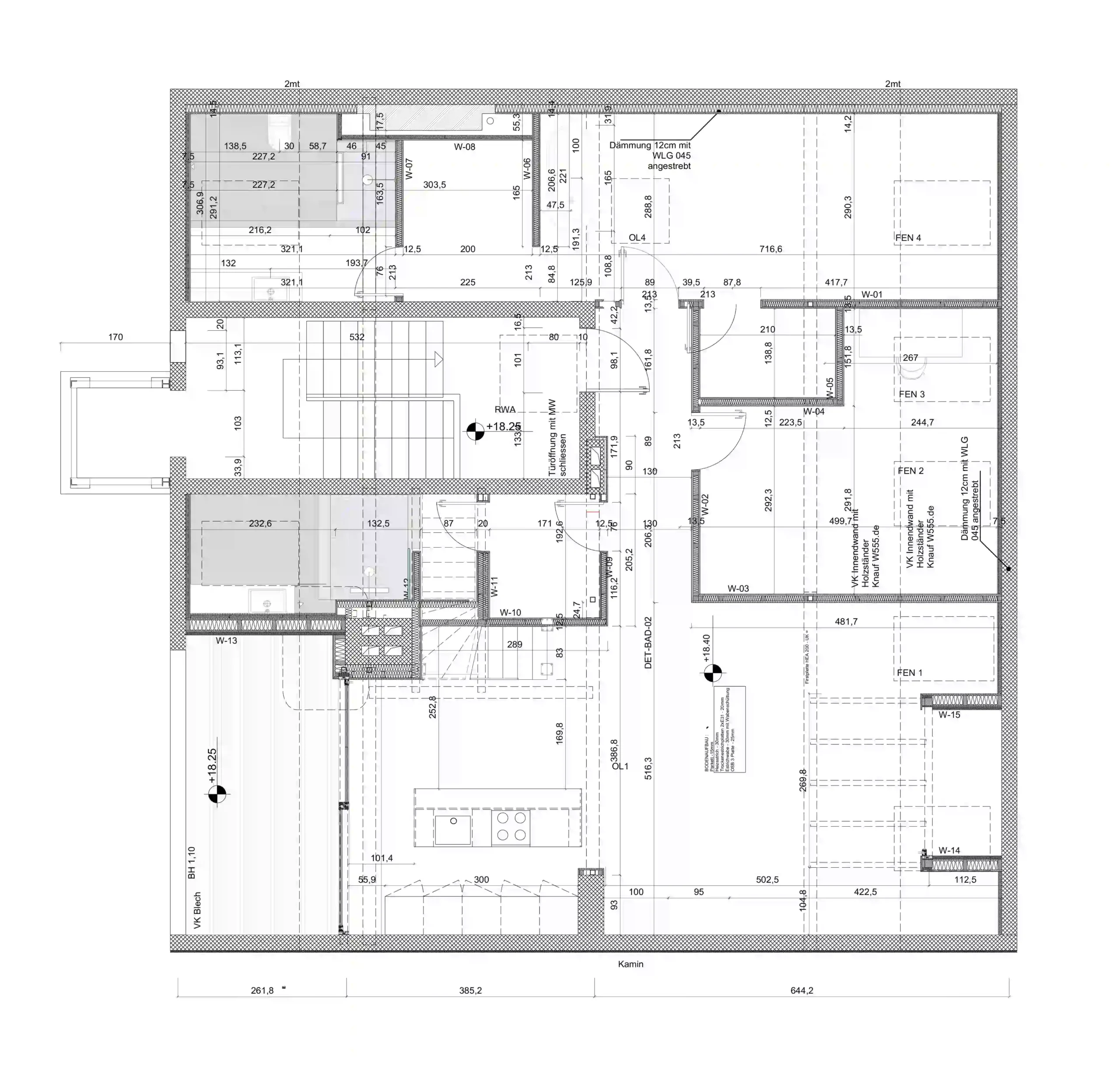
Total area: 150 m2
Total budget: 850.000 €

Set atop a typical Kreuzberg block, this rooftop extension creates a 150 sqm penthouse defined by generous outdoor spaces and a warm material palette. The apartment opens onto two terraces at the main level, while an additional roof terrace above the building—reached via a lightweight steel staircase—offers expansive views over the Berlin skyline.

The roof is conceived as a hybrid timber–steel structure. Load-bearing solid timber boards (Vollholz), 15 cm thick, are precisely shaped to rest on longitudinal steel beams, forming the structural deck of the roof. By placing the entire thermal insulation above the structural layer, the interior ceiling remains fully exposed in natural wood, giving the living spaces a calm and tactile atmosphere. The roof build-up is completed with an extensive green roof that improves thermal performance and contributes to water retention and urban biodiversity.

The interior layout is organized around a spacious open-plan living area with an island kitchen, complemented by two bedrooms, two bathrooms, and a dedicated sauna area. As part of the rooftop construction, a new elevator was introduced to provide direct access to the apartment, integrating the new dwelling seamlessly into the existing building structure.

See more projects