In charge for: Masterplan, Design Façade, interior design (concept, SD, DD & CD supervision, site surveillance)
Chronology: 2017-2021
Location: Beijing, CN
Client: Scitech Holding co. ltd.
Total budget: 4.700.000 €

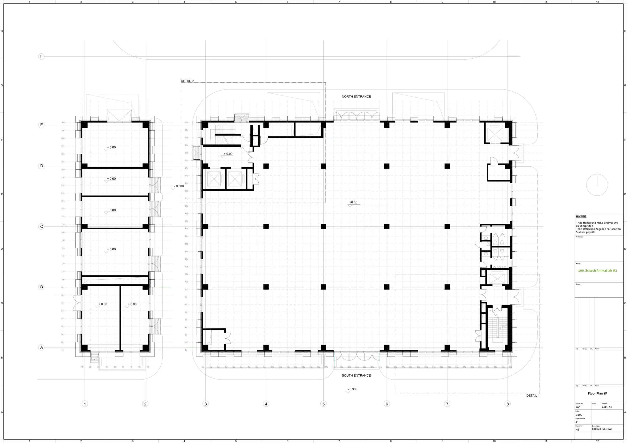
Located in Beijing’s Shunyi district, in close proximity to a cluster of high-tech industrial developments and not far from the Capital Airport, the project reimagines an existing industrial site as a contemporary research and business campus. The 20,000 sqm plot accommodates three existing buildings to be renovated alongside a new structure, forming a masterplan with a total gross floor area of approximately 17,000 sqm.
Rhizomet was commissioned to develop the façade renovation of the three existing buildings, the façade design of the new building, the interior design of the business center, and the landscape strategy for the entire site. The intervention aims to transform a former industrial compound into a cohesive architectural ensemble capable of hosting advanced biological research facilities and collaborative workspaces.
The laboratories are housed within a six-story existing building positioned along the southern edge of the site. Originally designed for offices and storage, the 25-meter-high structure required a comprehensive spatial and technical transformation to accommodate laboratory functions. The new program demanded a reorganization of the internal layout, the integration of a completely renewed MEP infrastructure, and the addition of a high-performance insulation system. As a result, a new external façade layer was introduced to both conceal the upgraded building envelope and integrate the extensive network of technical installations required for laboratory operation.
The building’s original geometry—a pure, monolithic box—remains the defining architectural element of the project. Given the large open space facing the north façade, where the main entrance is located, the new façade was conceived as a slightly offset skin that preserves the strong presence of the existing volume while adding depth and technical performance. To reinforce this monolithic character, the entire building is wrapped in a continuous layer of expanded metal mesh panels with consistent geometry and color. Only the rooftop level introduces a subtle variation, where the mesh adopts a darker tone to visually crown the volume.
Within this unified material framework, the façades are differentiated according to their program. The north façade, which hosts offices and meeting rooms, is punctuated by protruding dark-grey metal frames that emphasize the windows and create a dynamic rhythm across the elevation. In contrast, the south, west, and east façades—primarily housing laboratory spaces—maintain a more controlled expression. Here the expanded mesh surface is articulated by vertical blue metal channels that structure the façade and reveal the depth of the new envelope, which cantilevers approximately one meter from the original building line. The result is a layered architectural skin that balances technical requirements with a clear and coherent architectural identity.